475 Henderson Street, Lavington
Share house














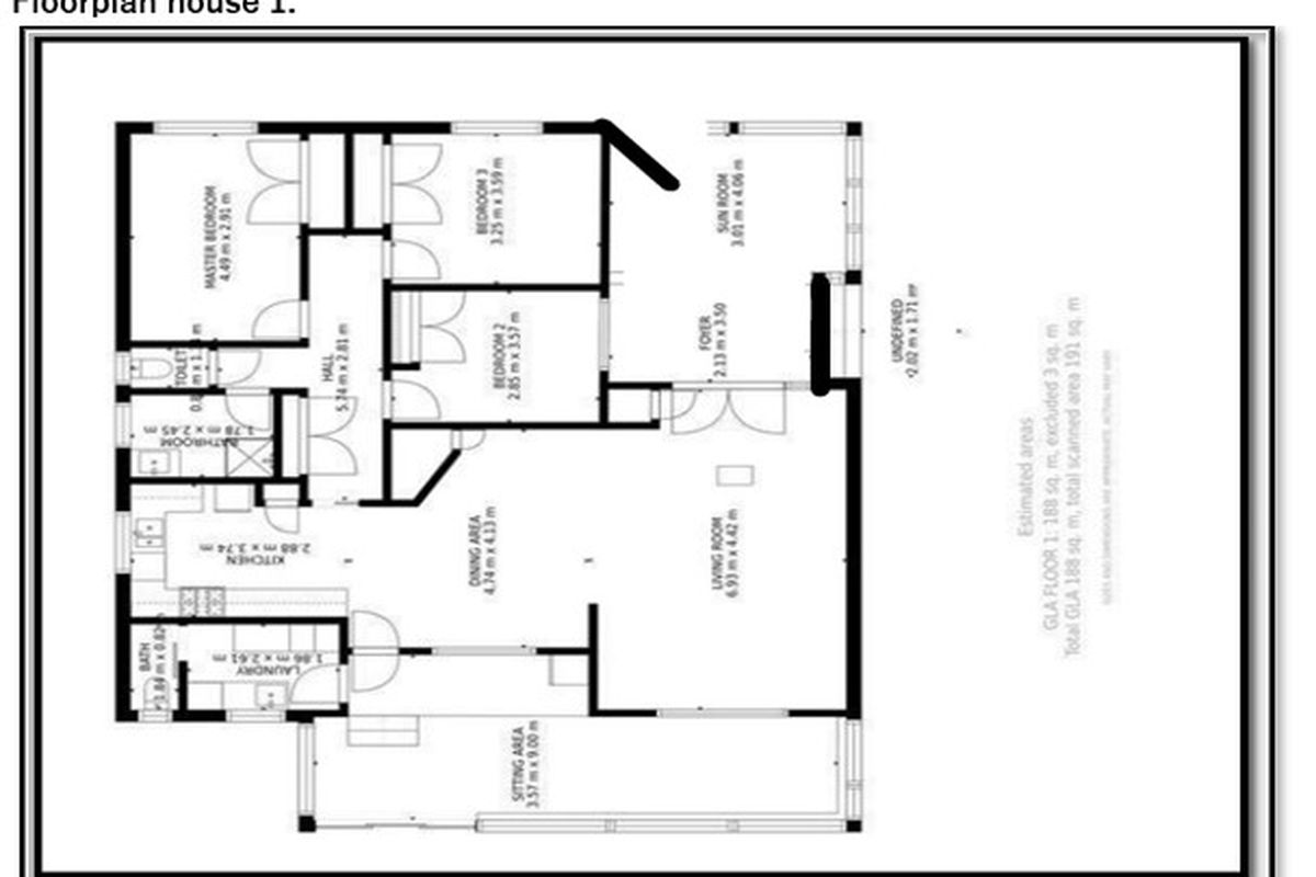
Description
• 1 Bedroom available in share house
• Extensively renovated throughout
• Large open plan kitchen, separate dining area and living space.
• 2 extra living areas that can be utilised for specific residents, would make great study / private spaces for tenants
• 2nd toilet, with modern laundry
• Front yard with extra large DBL garage with further storage areas & 3rd car space at side of garage – all off street & secure parking for 3 residents.
• The foyer offers direct access from the garage & allows that extra level of security due to secure/lockable door, on top of the existing front door, the foyer area also doubles as lovely all year round (fully enclosed) alfresco / outdoor area.
• 3 extra sitting/living spaces
• All utilities included
• Close to all amenities including schools, shopping, medical & public transport.
*Please note this is a shared house. There are currently two tenants living at the property, we are looking to secure a tenant for the third bedroom.
Please contact the agency for further information.
Your email address will not be published. Required fields are marked *