3 / 3 Wise Court, Wodonga
Deceptively large unit!









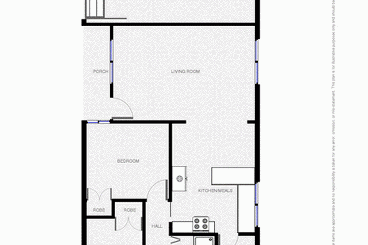
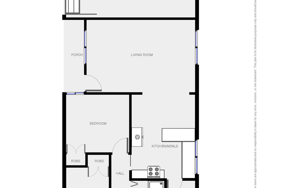
Description
Plenty of bonuses here with this very neat rear unit in small group of only three. Features include:
* 2 bedrooms with built in robes
* Great size separate lounge
* Kitchen and meals area
* Lock up garage, carport PLUS side access
* Larger, private yard
* Currently let at $215 per week until April 2016
Note: photos are not current
Your email address will not be published. Required fields are marked *